東雲キャナルコートCODAN 6階































弊社に依頼するメリット
・お部屋の確保から内見の手続き、契約までを完全サポート(入居後のご相談もOK)
・来店手続きもなく現地で待ち合わせも可能(時間の融通OK、とことんお付き合いします)
・他の公共賃貸から民間賃貸までを比較検討し、総合的にコンサルティング
・転居にともなう様々なサービスの提供
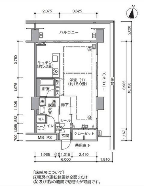
※設備・仕様・内装などが変更されている場合もございます。
※建物内の別の間取りでも空室がある場合がございます。
ご希望お部屋の空室待ちなども受付けておりますので、お電話かメールにてスタッフまでお申し付け下さい。
ご相談・お問い合わせ
おすすめポイント
東京メトロ有楽町線 『辰巳駅』・りんかい線『東雲駅』の2線利用可能の『東雲キャナルコート』。
銀座エリアへ5分圏内、東京駅・大手町駅・新橋駅は10分圏内です。
最寄の辰巳駅から物件までは徒歩6分の距離。
都心部ならではのゆとりの時間を持つことが出来るロケーションとなっています。
りんかい線で1駅の『国際展示場駅』では、この駅は東京ビッグサイトが有名でコミックマーケットなど、様々なイベントの会場に利用されています。
さらにもう1駅いくと『東京テレポート駅』があり、駅を出ると先進的なお台場の景色が広がっています。
お台場は言わずとしれたレジャースポット、海や砂浜、フジテレビやダイバーシティのスポッチャで遊んだり、アクアシティお台場でお買い物をしたりと、一日中いても飽きません。
建物はデザイナーズ賃貸住宅となっていて、各部屋の間取りのバリエーションをはじめ、スタイリッシュな外観、洗練されたロビー空間など、他にはない造り。
複数の建築家やデザイナーが参加した東雲デザイン会議を開き調整を図りながらもそれぞれの個性を発揮しつつまとめていき、そのデザインが評価され、2004年度にグッドデザイン賞を、2005年度はグッドデザイン金賞を受賞しています。
全部で21号棟、6街区に分かれており、それぞれ別のデザイナーがデザインしており、お部屋の雰囲気がガラッと変わるのが面白いです。
1街区(11・12・13号棟)のデザイナー:山本理顕、2街区(14・15号棟):伊東豊雄、3街区(16・17号棟):隈研吾、4街区(18号棟):山田正司、5街区(Brillia ist 東雲キャナルコート):渡辺真理、木下庸子、高橋寛、高橋晶子、6街区(19・20・21号棟):元倉真琴、山本圭介、堀啓二、ランドスケープ:長谷川浩己、照明:近田玲子、サイン:廣村正彰
都心ならではの眺望が望める屋上テラスや、敷地内には緑を多く配置したりなど、住む人の心地よさを追求したデザイン。
また、使いやすさも重視していてLANとインターネット専用回線や宅配ロッカーなどの設備も充実しています。
敷地内に24時間営業のスーパー(イオン東雲店)や保育所・幼稚園(しののめYMCAこども園)があり、ファミリーにもやさしい環境。
24時間有人管理やリモコン式シャッター駐車場などセキュリティ面も万全で安心。
近隣には桜並木のある森緑道公園、森海浜公園、東雲水辺公園をはじめ、お台場海浜公園やららぽーと豊洲といったショッピングモール、スーパービバホームも徒歩圏内です。