フレーシェル王子神谷 12階




















1、UR賃貸住宅にするメリット
礼金0円・更新料0円・仲介手数料0円・保証人不要
※必要な費用は敷金と日割家賃、共益費のみです。
・原状回復負担区分が明確(令和4年度に退去されたお客様の修理費負担額は平均約4万1千円)
・耐震診断、耐震改修への取り組み(居住性と安心を追求した住まいづくり)
・社宅の利用OK(一部では事業者が従業員用の住宅として申し込む事も可能)
・様々なライフスタイルに対応(高齢者向け・ペット共生・特別募集住宅・リニューアル住宅など)
2、弊社に依頼するメリット
・お部屋の確保から内見の手続き、契約までを完全サポート(入居後のご相談もOK)
・来店手続きもなく現地で待ち合わせも可能(時間の融通OK、とことんお付き合いします)
・他の公共賃貸から民間賃貸までを比較検討し、総合的にコンサルティング
・転居にともなう様々なサービスの提供
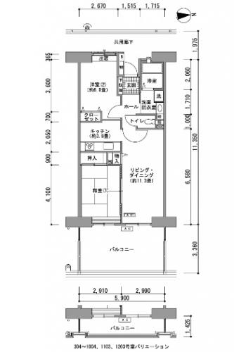
※設備・仕様・内装などが変更されている場合もございます。
※建物内の別の間取りでも空室がある場合がございます。
ご希望お部屋の空室待ちなども受付けておりますので、お電話かメールにてスタッフまでお申し付け下さい。
ご相談・お問い合わせ
おすすめポイント
最寄の駅は東京メトロ南北線 王子神谷駅。駒込駅へは7分。東京駅、新宿駅へはおよそ23分。と、都心へのアクセスがスムーズ。四谷駅までは乗り換え無くダイレクトに行くことが出来、駅から物件まではわずか徒歩6分のロケーションです。
駅周辺は活気ある商店街や「サミット」などのスーパーマーケットがあり毎日の買物をサポートします。また、建物近くにはコンビニエンスストアもあるのでちょっとした買物に便利。建物の近隣に図書館など区の行政施設があり、保育園や幼稚園、小・中学校などの各教育機関も徒歩圏内に揃っています。
建物はゆとりある敷地内に建てられ、公園や住民同士が自然とコミュニケーションがとれるようなベンチなどがあり、ゆったりと過ごせそう。また、周辺には神谷堀緑地があり、四季折々の自然を感じさせてくれたり、目の前を流れる隅田川流れが住む人の心を癒します。


