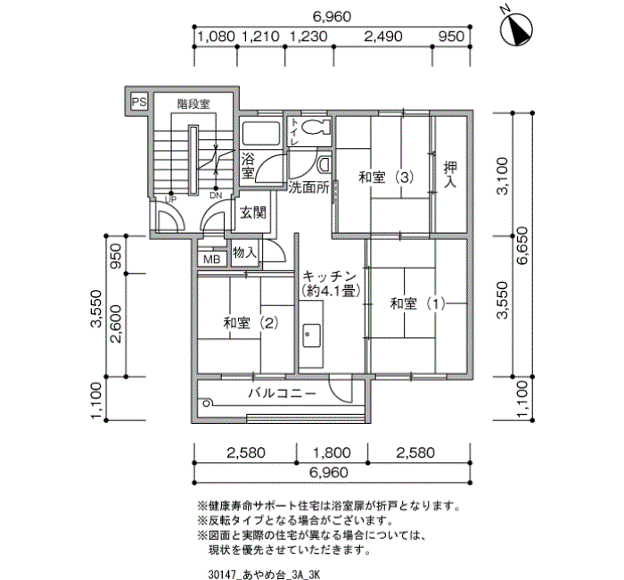
あやめ台団地 2階












仲介手数料・礼金・更新料無料のUR賃貸住宅!
1、UR賃貸住宅にするメリット
礼金0円・更新料0円・仲介手数料0円・保証人不要
※必要な費用は敷金と日割家賃、共益費のみです。
✓ 原状回復負担区分が明確(令和4年度に退去されたお客様の修理費負担額は平均約4万1千円)
✓耐震診断、耐震改修への取り組み(居住性と安心を追求した住まいづくり)
✓社宅の利用OK(一部では事業者が従業員用の住宅として申し込む事も可能)
✓様々なライフスタイルに対応(高齢者向け・ペット共生・特別募集住宅・リニューアル住宅など)
2、弊社に依頼するメリット
✓お部屋の確保から内見の手続き、契約までを完全サポート(入居後のご相談もOK)
✓来店手続きもなく現地で待ち合わせも可能(時間の融通OK、とことんお付き合いします)
✓他の公共賃貸から民間賃貸までを比較検討し、総合的にコンサルティング
✓転居にともなう様々なサービスの提供
※設備・仕様・内装などが変更されている場合もございます。
※建物内の別の間取りでも空室がある場合がございます。
ご希望お部屋の空室待ちなども受付けておりますので、お電話かメールにてスタッフまでお申し付け下さい。
ご相談・お問い合わせ
おすすめポイント
【仲介手数料・礼金・更新料無料のUR賃貸住宅!!】
最寄り駅の「稲毛駅」は快速線を走行する横須賀・総武快速線、緩行線を走行する中央・総武緩行線どちらも利用でき、
快速線で「東京駅」まで約35分、「品川駅」まで約47分、中央・総武線で「秋葉原駅」まで約48分、
「水道橋駅」まで約53分と都心のアクセスが便利な駅です。
車でのアクセスも近くに幹線道路の国道16号線が北方面に向かうも房総半島に向かうのも便利。
高速道路も京葉道路穴川インターチェンジから快適に東京方面に向かうことができます。
1,538の戸数があるこの物件は広い敷地内に遊具があるプレイロッドや郵便局・スーパーがあり、
周辺にもホームセンター、家電量販店、飲食店があるので日々のお買い物にも便利です。
お部屋は、2DK~3DKの間取りを取り扱い。
家賃帯が3万円代からとなっておりますので、
周辺の民間物件と比べて、リーズナブルな価格設定は、『あやめ台団地』のおススメPOINT!!
本物件が気になる方は、是非一度弊社にお問い合わせくださいませ。
※内観画像は、過去成約部屋の画像を参考で利用しております。
