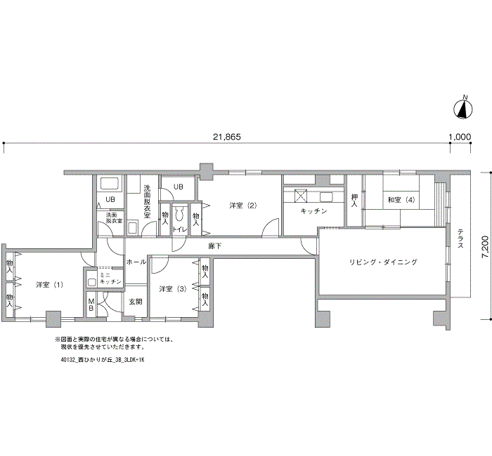
西ひかりが丘団地 1階











1、UR賃貸住宅にするメリット
礼金0円・更新料0円・仲介手数料0円・保証人不要
※必要な費用は敷金と日割家賃、共益費のみです。
・原状回復負担区分が明確(令和4年度に退去されたお客様の修理費負担額は平均約4万1千円)
・耐震診断、耐震改修への取り組み(居住性と安心を追求した住まいづくり)
・社宅の利用OK(一部では事業者が従業員用の住宅として申し込む事も可能)
・様々なライフスタイルに対応(高齢者向け・ペット共生・特別募集住宅・リニューアル住宅など)
2、弊社に依頼するメリット
・お部屋の確保から内見の手続き、契約までを完全サポート(入居後のご相談もOK)
・来店手続きもなく現地で待ち合わせも可能(時間の融通OK、とことんお付き合いします)
・他の公共賃貸から民間賃貸までを比較検討し、総合的にコンサルティング
・転居にともなう様々なサービスの提供
※設備・仕様・内装などが変更されている場合もございます。
※建物内の別の間取りでも空室がある場合がございます。
ご希望お部屋の空室待ちなども受付けておりますので、お電話かメールにてスタッフまでお申し付け下さい。
ご相談・お問い合わせ
おすすめポイント
最寄り駅の「中山駅」は2線利用でき、横浜市営地下鉄グリーンラインはお買い物に便利、JR横浜線は沿線の駅は乗り換えに適しています。
グリーンラインは「センター南駅」から港北 TOKYU S.C.・サウスウッド「センター北駅」からモザイクモール港北・都筑阪急・ショッピングタウンあいたいとショッピングモールが密集、モザイクモール港北・都筑阪急の屋上にはなんと観覧車まであります。
JR横浜線は「菊名駅」から東急東横線、「長津田駅」から東急田園都市線、「新横浜駅」から東海道新幹線、「町田駅」から小田急線に乗り換えできます。
また都心へのアクセスも「渋谷駅」まで約39分と良好です。
普段のお買い物も中山駅にショッピングモールビーンズ中山や東急ストアもあるので言うことなし。
四季の森公園と里山ガーデンと緑が多い広い公園に挟まれ、充実した生活が送れそうです。
