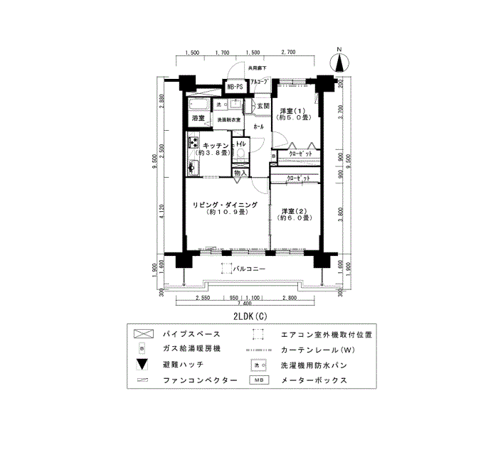
サンラフレ平岸 2階





















1、UR賃貸住宅にするメリット
礼金0円・更新料0円・仲介手数料0円・保証人不要
※必要な費用は敷金と日割家賃、共益費のみです。
・原状回復負担区分が明確(令和4年度に退去されたお客様の修理費負担額は平均約4万1千円)
・耐震診断、耐震改修への取り組み(居住性と安心を追求した住まいづくり)
・社宅の利用OK(一部では事業者が従業員用の住宅として申し込む事も可能)
・様々なライフスタイルに対応(高齢者向け・ペット共生・特別募集住宅・リニューアル住宅など)
2、弊社に依頼するメリット
・お部屋の確保から内見の手続き、契約までを完全サポート(入居後のご相談もOK)
・他の公共賃貸から民間賃貸までを比較検討し、総合的にコンサルティング
・転居にともなう様々なサービスの提供
※設備・仕様・内装などが変更されている場合もございます。
※建物内の別の間取りでも空室がある場合がございます。
ご希望お部屋の空室待ちなども受付けておりますので、お電話かメールにてスタッフまでお申し付け下さい。
ご相談・お問い合わせ
おすすめポイント
【令和6年11月13日より新リノベーション棟募集開始!】
新リノベーション棟が募集開始!
仲介手数料・礼金・更新料無料のUR賃貸住宅
UR賃貸住宅としては北海道唯一!
ペット共生住宅である「サンラフレ平岸」
愛猫・愛犬と一緒に豊かでゆとりあるライフスタイルが実現できます。
(犬・猫は1住戸1頭のみ、サイズ制限等ございますのでご了承ください。)
2023年に一棟まるっとリノベーションしたばかりなので、
オートロックや宅配ボックスなどの最新設備も設置されていますので、
安心かつ快適な生活を送る事が可能!!
敷地内はペットと一緒に散歩もしやすいようにゆとりある造りになっており、
今後ドッグランの設置。開設も予定しているなどペットと暮らしたい方にはオススメです。
また、最寄りの平岸駅周辺にはスーパーからレストラン、銀行、医療センターなども揃っており、
日々の買い物だけでなく様々な用事を駅前で完結できる環境が整っております。
大通駅や札幌駅まで電車での移動もしやすく、アクセス面もイチオシの好立地です。
小学校や中学校などの教育機関も近いため、単身から子供のいるご家族など、
あらゆる世代・世帯に過ごしやすい環境でペットと楽しい日々を過ごしてみてはいかがでしょうか。
少しでも気になる情報ございましたら、お気軽にお問い合わせください。
※内観画像は、過去成約部屋の画像を参考で利用しております。
サンラフレ平岸に近い物件
近隣の駅から探す
近隣のエリアから探す
