浦安マリナイースト21 海園の街 7階



































1、UR賃貸住宅にするメリット
礼金0円・更新料0円・仲介手数料0円・保証人不要
※必要な費用は敷金と日割家賃、共益費のみです。
・原状回復負担区分が明確(令和4年度に退去されたお客様の修理費負担額は平均約4万1千円)
・耐震診断、耐震改修への取り組み(居住性と安心を追求した住まいづくり)
・社宅の利用OK(一部では事業者が従業員用の住宅として申し込む事も可能)
・様々なライフスタイルに対応(高齢者向け・ペット共生・特別募集住宅・リニューアル住宅など)
2、弊社に依頼するメリット
・お部屋の確保から内見の手続き、契約までを完全サポート(入居後のご相談もOK)
・来店手続きもなく現地で待ち合わせも可能(時間の融通OK、とことんお付き合いします)
・他の公共賃貸から民間賃貸までを比較検討し、総合的にコンサルティング
・転居にともなう様々なサービスの提供
※設備・仕様・内装などが変更されている場合もございます。
※建物内の別の間取りでも空室がある場合がございます。
ご希望お部屋の空室待ちなども受付けておりますので、お電話かメールにてスタッフまでお申し付け下さい。
ご相談・お問い合わせ
おすすめポイント
【南国のリゾート感あふれる、街並みに建つUR賃貸マンション!!】
更新料・礼金・仲介手数料0円のUR賃貸住宅です!
隣駅は人気テーマパークがある舞浜駅!!
建物の最寄の駅は『JR京葉線 新浦安駅』乗り換えなしで東京駅までは20分圏内です。
駅前からバスの発着があり、建物の最寄りのバス停は徒歩2分。雨の日などに大変便利です!!
14階建てのUR賃貸マンション。
電柱のない美しい街なみに建っているので、開放感は抜群。眺望も抜けており、東京湾を見渡すことができるお部屋もございます。
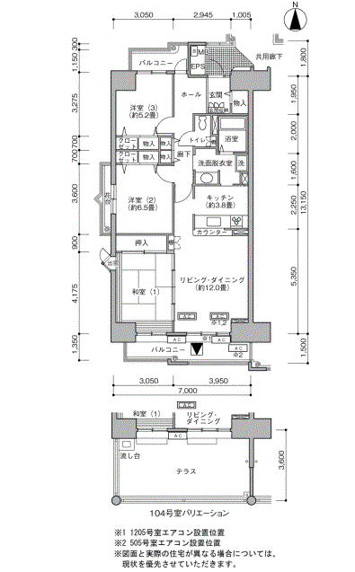
3LDKや4LDKの間取にはメゾネットタイプや納戸付の間取があり、広めの間取のバリエーションが豊富です。
また設備としてエアコン、浴室乾燥機、追い炊き機能、ドロップインコンロ。
一部お部屋にはオートドアロック(モニター有)、モニター付きインターホン、床暖房などがあり設備も充実しております。
物件周辺には、大きな公園やスポーツ広場など、レジャー施設があり、
日常的な買い物に便利なスーパーや、「ニューコースト」「ケーズデンキ」「ケーヨーデイツー」などの大型専門店も充実!!
幼稚園や、インターナショナルスクール、大規模なこども園などが身近にそろっていて、 子育て世代の方にも安心の住環境です。
※この建物は住棟が複数あるため築年月は号棟により異なります。
また、総階数が号棟により異なる場合がございます。
